✨ Cảm hứng thiết kế đến từ khắp mọi miền
Mỗi thiết kế đều lấy cảm hứng từ nhiều vùng miền khác nhau. Nhờ đó, tạo nên nét thẩm mỹ riêng biệt và khó trộn lẫn. Tuy nhiên, khi áp dụng vào thực tế, kiến trúc sư cần điều chỉnh hợp lý. Những cải biên này phải giữ được tinh thần phong cách ban đầu, đồng thời đáp ứng yêu cầu cụ thể của gia chủ.

🏠 “Nhà mái Nhật hiện đại” – Kết quả của sự dung hòa
Từ nhu cầu thực tế đó, mẫu “Nhà mái Nhật hiện đại” đã ra đời.
Đội ngũ thiết kế Thịnh Phát đã cân nhắc kỹ lưỡng nhiều yếu tố quan trọng. Họ xem xét về quy mô đất, ngân sách và mong muốn của gia đình. Mục tiêu là tạo nên một ngôi nhà vườn hiện đại, rộng rãi và tiện nghi. Đồng thời vẫn lưu giữ chút màu sắc truyền thống. Không gian sống cần yên tĩnh, thoáng đãng và tốt cho sức khỏe – đặc biệt phù hợp với người lớn tuổi.

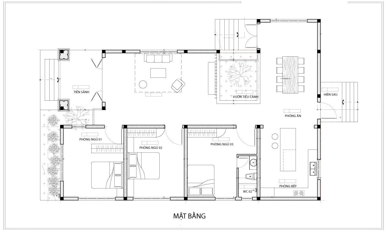
🌿 Giải pháp thiết kế hài hòa giữa hiện đại và truyền thống
Sau khi khảo sát và trao đổi kỹ lưỡng với gia chủ, các kiến trúc sư đã “thổi hồn” Việt vào phong cách mái Nhật. Thiết kế mái ngói gợi nhớ đến hình ảnh quen thuộc trong nhà ở truyền thống Việt Nam.
Ngoại thất ngôi nhà theo hướng tối giản và nhẹ nhàng. Hệ thống cửa kính lớn giúp ánh sáng tự nhiên tràn ngập khắp không gian. Sân vườn xanh mát được chú trọng để tạo cảm giác thư giãn, dễ chịu và gần gũi thiên nhiên.

🌤 Không gian sống kết nối tự nhiên
Thiết kế này giúp xóa nhòa khoảng cách giữa nội thất và ngoại thất. Người bên trong vẫn cảm nhận được sự kết nối với thiên nhiên bên ngoài qua từng góc nhìn và làn gió mát.

💡 Thịnh Phát – Thiết kế bắt nguồn từ cuộc sống
Tại Thịnh Phát, chúng tôi tin rằng mọi thiết kế đều bắt đầu từ chính cuộc sống thường ngày. Chúng tôi luôn lắng nghe và thấu hiểu từng khách hàng. Từ đó, tạo nên những bản vẽ không chỉ đẹp mà còn mang cá tính riêng, phản ánh chân thật phong cách sống của gia chủ.




Mọi thông tin chi tiết vui lòng liên hệ:
TRỤ SỞ TP.HCM:
– Công ty Cổ Phần Đầu Tư Tư Vấn Thiết Kế Xây Dựng Thịnh Phát Construction
– Trụ sở chính: 256/55, TX25, khu Phố 2, P.Thạnh Xuân, Q.12, TP. Hồ Chí Minh.
– Xưởng cơ khí: 24E, TX 31, p. Thạnh Xuân, Q. 12, TP. Hồ Chí Minh.
– Xưởng nội thất: 256/55, TX25, khu phố 2, p.Thạnh Xuân, Q. 12, TP. Hồ Chí Minh.
– Hotline: 02822117112 hoặc 0911.006.112
– Web: thinhphatconstruction.vn
– Facebook: Thịnh Phát Construction
– Youtube: Xây dựng Thịnh Phát
– Gmail: thinhphatconstruction255@gmail.com
CHI NHÁNH HÀ NỘI:
– Địa chỉ: Tầng 4 Tòa nhà Ocean Park số 1 Đào Duy Anh, P. Kim Liên, Hà Nội.
CHI NHÁNH BÌNH DƯƠNG:
– Địa chỉ: 11H/13 KDC Lê Phong, Khu Phố Bình Phước A, Phường Bình Chuẩn, Thành Phố Thuận An, Tỉnh Bình Dương.
CHI NHÁNH BÌNH ĐỊNH:
– Chi nhánh 1: Lô LKB-D-41 Dự ans Đại Phú Gia, Khu C Khu Đô Thị - Thương mại Bắc sông Hà Thanh, Phường Nhơn Bình, Thành phố Quy Nhơn, Bình Định.
– Chi nhánh 2: Căn B1-20,21 khu đô thị Phú Mỹ Lộc, Phường Tam Quan, thị xã Hoài Nhơn, Bình Định.
– Xưởng SX : KP Cửu Lợi Bắc, phường Tam Quan Nam, thị xã Hoài Nhơn, Bình Định.
Hotline: 0911.006.112